Sign up
ID#591373

26 Ohiwa Parade,

Ohope

Whakatane & District
$2,150,000
4
2
2
Approx
3,288
(≈35,391.7 sq.ft.)

Grandstand Ohope Harbour Views

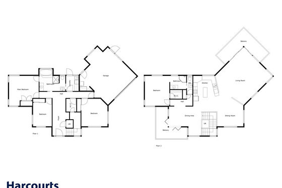
This striking two-level home is a rare find, offering a commanding panoramic outlook with harbour views, that instills calm and tranquillity and a lifestyle that few properties can match.
Set on an expansive 3288 m2 in a quiet cul de sac, the current owners have loved having their very own sports ground, the perfect spot for family and friends to come together for endless hours of fun. You may be inspired to create your own Wimbledon-style grass court championship.
Step inside to discover a home that's every bit as special as the land it sits on. Four well-proportioned bedrooms provide comfort for all, with the master enjoying a picture-perfect outlook across park-like grounds and beyond - a true grandstand view.
An excellent feature here is the internal lift, whether for easy access or simply whisking the groceries up to the kitchen.
The supersized living offers flexibility galore, with room for entertaining, a reading nook, or simply space to spread out. Two upper decks give you elevated spaces to relax, entertain, and simply soak in the scenery.
Bird watchers will be in their element here, settle in on the top deck and watch kereru, tui or the entertaining antics of friendly pheasants and other birdlife.
Parking is effortless with internal access double garage and a semi-circular driveway, perfect when hosting family and friends.
For the gardener, there's a potting shed plus two more sheds for storage.
For those who love the outdoors, the harbour is just steps away for kayaking, paddleboarding, or evening strolls as the sun sets. Or enjoy a picnic at the favoured spot amongst the neighbours.
Located in a welcoming cul de sac on Ohiwa Parade, there's no through traffic - just peace, privacy and nature. Call Chris Robson 0275770029 today to arrange a viewing or discuss further.

Keywords

Features

  • Walk in Wardrobe
  • Internal Garage Access
  • Air Conditioning
  • Undercover Parking
  • Off-street parking

Ask a question about this property

Please leave this field blank:
YOUR NAME
YOUR EMAIL
YOUR MESSAGE

Location

Points of Interest
    Loading...

Agents

Chris Robson AREINZ

Harcourts Whakatane - ETB Realty Ltd MREINZ

Licensed Real Estate Agent (REA 2008), Member of the REINZ

Chris is a local through and through having grown up in Whakatane and being actively involved in sports clubs and the community.
With an early career in the Police, trust, honesty and integrity is vitally important to him, which goes hand in hand with client care and attention to detail.
Since Chris commenced real estate in 2004 he has attained his AREINZ qualification and is an accomplished Auctioneer, also catering for many charity auctions in our community and beyond.
His drive and tenacity, partnered with excellent negotiation skills to ensure a fantastic outcome for his clients and ongoing repeat and referred business.
Chris is joined in real estate with his wife Arlene, a licensed salesperson with a wealth of experience, offering a team approach and combined 50 years experience, ensuring a point of contact is always available.
If you are looking for skilled, dedicated agents, trust Chris and Arlene to lead the way.
Outside of work, you can often find Chris and Arlene hiking in many of the popular bush walks on our doorstep or having a hit of tennis.

read more

Arlene Davidson

Harcourts Whakatane - ETB Realty Ltd

Licensed Real Estate Salesperson (REAA 2008), Member of the REINZ

Arlene is a licensed salesperson with 20+ years experience in real estate plus residential and commercial construction and property development. Arlene is joined in real estate with her husband Chris Robson, a Licensed Agent and Auctioneer and together offer a wealth of experience, a team approach and combined 50 years experience, ensuring a point of contact is always available.
If you are looking for skilled, dedicated agents, trust Chris and Arlene to lead the way.
Outside of work, you can often find Chris and Arlene hiking in many of the popular bush walks on our doorstep or having a hit of tennis.

read more

This property was photographed by

Pip Brabant

Media Specialist

Whakatane and surrounds

ID#591373

26 Ohiwa Parade,

Ohope

Whakatane & District
$2,150,000
proudly marketed by
Chris Robson AREINZ Arlene Davidson
Harcourts Whakatane - ETB Realty Ltd MREINZ
Chris
027 577 0029
Arlene
027 264 1913
Message us about this property

Leave a message for Pip Brabant

Please leave this field blank:
I Would like to
NAME
EMAIL
YOUR AGENT'S NAME
PHONE
MESSAGE
SALE ORDER