Sign up

Listed 6 months ago

ID#599644

Ohauiti

Tauranga
$765,000
4
2
1

Modern, move-in ready and priced to sell

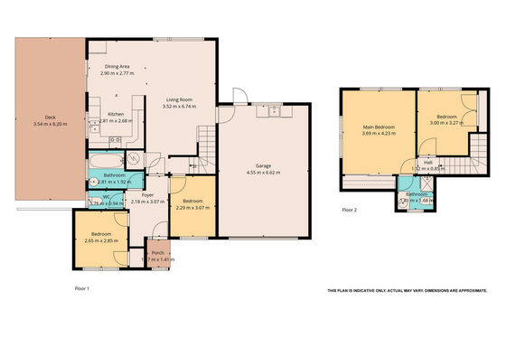
In a quiet cul-de-sac, elevated with rural views, this surprisingly large two storey townhouse is modern, low maintenance and very appealing. A practical and user friendly floor plan sees generous open plan living spaces with a sleek kitchen flowing seamlessly to a sunny, sheltered deck and fenced yard for effortless entertaining and a safe place for children and pets to play.

Two double bedrooms and a third single bedroom/office share the family bathroom with separate WC, while the master with ensuite enjoys a green, scenic outlook over a rolling landscape towards the Kaimai Range and picturesque sunsets in the West.

Comfort is assured year-round with two heat pumps - one upstairs and one downstairs.

An oversized single garage with laundry and ample room for more storage is supplemented by additional off-street parking for two cars, while fresh new carpet and a crisp neutral décor ensure this home is move in ready. An added bonus is the huge reserve at the end of the street, with green fields and bush, a sparkling stream, pick your own fruit and avocados, with two playgrounds, a grocery store and public transport conveniently close.

A family friendly community, Ohauiti is only a short drive from Tauranga's CBD, handily located to escape the hustle and bustle while still retaining easy access to schools, amenities and arterial routes to Bayfair, Papamoa, Mt Maunganui and The Lakes. The footprint of this warm and inviting home may be compact, but thoughtful design has maximized every available area. With summer on the way, first home buyers, investors or those looking to downsize need to view now to build your future here.

Keywords

Features

  • Ensuite
  • Internal Garage Access
  • Off-street parking

Ask a question about this property

Please leave this field blank:
YOUR NAME
YOUR EMAIL
YOUR MESSAGE

Agents

Tracy Killip

Bayleys Tauranga

Licensed Real Estate Salesperson (REAA 2008), Member of the REINZ

We think buying a home is a big deal, and having the right support can make all the difference.

As Buyers Specialist at Bayleys Tauranga, Tracy Killip brings over 40 years of local knowledge, working alongside Carmen Dickison to help buyers navigate the market with confidence.

Tracy is known for her calm, practical approach and her ability to truly listen to her clients' needs. With a strong background in sales and a deep understanding of the Bay of Plenty lifestyle, she’s focused on helping you find the right property with ease and certainty.

She takes care of the hard work and research behind the scenes—so you can make informed decisions without the overwhelm. From understanding the market to identifying the best-fit properties, Tracy is there to make the process more efficient and far less stressful.

Whether you're buying your first home, upgrading, or investing, Tracy offers honest advice, steady support, and a clear focus on achieving your goals every step of the way.

read more

Carmen Dickison

Bayleys - Tauranga

Licensed Real Estate Salesperson (REAA 2008), Member of the REINZ

Carmen has been Bayleys Tauranga Top Residential salesperson from 2019 - 2026 and is consistently in Bayleys Top 5% or 10% of salespeople nationwide. She goes the extra mile for her clients and believes that excellent communication and marketing are key to her success of selling and achieving the best possible sales price for her clients.

Prior to starting in Real Estate in 2007, Carmen worked in senior marketing and communication roles which is also backed up with her degree in Communications, Management and Marketing. After working with Bayleys Wellington for four years she moved to Tauranga in 2010 with her family.

The Bayleys name is synonymous with quality marketing and communications so joining the Bayleys team in Tauranga was the natural choice. Selling and maximizing the value of your property is no simple matter, neither is choosing the right agent to do the job. List your home with Carmen and you will be in excellent hands. She will bring her energy, enthusiasm, tenacity and proven marketing/communications expertise to the job of selling and maximizing the potential value of your property. Carmen goes above and beyond expectations for her clients and treats every property with the respect and careful consideration deserved as if she was selling her own home.

read more

This property was photographed by

Alta van Blerk

Media Specialist

BOP

Leave a message for Alta van Blerk

Please leave this field blank:
I Would like to
NAME
EMAIL
YOUR AGENT'S NAME
PHONE
MESSAGE
SALE ORDER