Sign up
ID#599779

19 Havenbrook Way,

Pyes Pa

Tauranga
$745,000
2
1
1
Approx
105
(≈1,130.21 sq.ft.)
Approx
215
(≈2,314.24 sq.ft.)

Easy Care Living in Havenbrook Village

If you're looking for an easy care, freehold home in a secure, over 50s gated community, 19 Havenbrook could be just the place.

Nestled within the friendly Havenbrook Village, this beautifully maintained brick and tile home offers comfort, convenience, and a true sense of community.

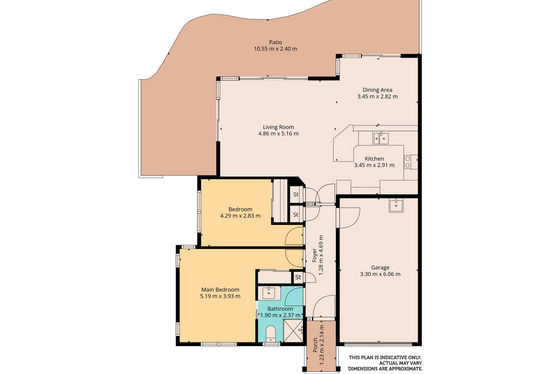
Step inside and you'll be pleasantly surprised by the spacious layout, the living, dining, and kitchen areas are light filled and welcoming, with a soft neutral palette that's ready for your personal touch.

Designed to capture all day sun, the home flows effortlessly to a private outdoor patio, perfect for relaxing with a cuppa, tending to your garden, or entertaining friends and family. Positioned across from the village green, the outlook is lovely and serene.

There are two generous double bedrooms, including a sunny master with semi ensuite and double wardrobe. A heat pump in the living area ensures year round comfort, and the fully alarmed home also features internal access garaging with carpet underfoot for added warmth and practicality.

Life at Havenbrook Village is all about ease and enjoyment. The Green House in the heart of the village is a welcoming hub for happy hours, social events, and friendly catch ups. With an on-site village manager and all common areas and lawns taken care of, you'll have more time to focus on what matters most.

Located just minutes from Pyes Pa shops, Tauranga Crossing, Greerton Village, and Tauranga Hospital, this is a lifestyle that's peaceful, practical, and well connected.

We'd love to show you through. Contact Crawford & Co today to arrange your private viewing

Keywords

Features

  • Internal Garage Access
  • Single Garage

Ask a question about this property

Please leave this field blank:
YOUR NAME
YOUR EMAIL
YOUR MESSAGE

Location

Points of Interest
    Loading...

Agents

Kim Crawford

Eves Real Estate (Cherrywood)

Licensed Real Estate Salesperson (REAA 2008), Member of the REINZ

Kim is an experienced real estate agent with 7 years of industry experience. She is known for her professional approach, warm nature, genuine integrity, and absolute commitment to achieving the best outcome for her clients. When working with Kim, she will take the time to listen to your needs and tailor her services to suit your requirements.

Kim will start by visiting you to have a conversation and understand your needs and goals. Based on that, she will work with you to develop a game plan for success. She will provide guidance and assistance in preparing your home for the market and collaborate with you to create a marketing plan and pricing strategy.

One of Kim's strengths is her ability to ensure maximum exposure for your property. She utilizes her extensive database, social media platforms, internet websites, and even print media to promote your home effectively. Her determination, motivation, and drive are evident in everything she does, making her an ideal agent to consider.

Outside of her professional life, Kim is a wife, a mother of two boys and is actively involved in her local community. She and her family are part of the local mountain biking club, where she has volunteered her time during the summer to ensure the safety of participants in various mountain biking events. Kim also participates and sponsors a local running group called Heart and Sole, which aims to inspire women to be active through running.

Overall, Kim's experience, dedication, and involvement in both the real estate industry and her community make her a well-rounded and reliable choice as a real estate agent.

read more

Georgia Rattray

Eves Cherrywood

Licensed Real Estate Salesperson (REAA 2008), Licensed Real Estate Agent (REA 2008), Member of the REINZ

Genuine. Dedicated. Professional.

Georgia epitomizes local knowledge and connections, having been born and raised in Tauranga. Her roots run deep in the community, fostering a vast network of relationships and an abundance of local wisdom.

Intrigued by her parents' extensive local investment portfolio and driven by her own curiosity and passion for property, Georgia naturally gravitated towards obtaining her Real Estate License.

Georgia embodies a unique blend of professionalism and genuine warmth. Her personable nature extends beyond the transactional, as she genuinely wants the best outcome for you. With a heartfelt commitment to your goals, Georgia invests every effort to ensure optimal results.

Georgia boasts a track record as a successful salesperson, production assistant and business manager, having worked collaboratively in a team consistently ranking in the top 20% of all EVES salespeople. This accomplishment reflects her unwavering commitment to excellence and a proven ability to deliver outstanding results for her clients.

She understands that buying or selling a property often marks a significant and transformative moment in someone's life. Georgia is committed to navigating these pivotal moments with professionalism and care.

Backed by her wealth of experience in customer service, real estate behind the scenes and fuelled by an insatiable desire to meet the needs of property buyers and sellers, Georgia has an unwavering commitment to achieving exceptional results in every transaction. Your journey through the process of buying or selling property will be no exception.

Rest assured, with Georgia by your side, you can have complete confidence in her integrity, work ethic, and determination. She is a dedicated and hardworking young professional who will advocate tirelessly on your behalf, ensuring your real estate experience exceeds all expectations.

When you sit down and chat to Georgia you will instantly know you have met the right person to work with.

read more

This property was photographed by

Alta van Blerk

Media Specialist

BOP

ID#599779

19 Havenbrook Way,

Pyes Pa

Tauranga
$745,000
proudly marketed by
Kim Crawford Georgia Rattray
Eves Real Estate (Cherrywood)
Kim
+64 21 173 5518
Georgia
027 926 1439
Message us about this property

Leave a message for Alta van Blerk

Please leave this field blank:
I Would like to
NAME
EMAIL
YOUR AGENT'S NAME
PHONE
MESSAGE
SALE ORDER