- Find a Property
- Residential
- Commercial
- Farm/Ag
- Rentals
111 Harbour Terrace,
North Dunedin
Dunedin
Popular & Strong Rental = Your Next Investment!
Here's your opportunity to secure a strong investment and a popular student property in one of Dunedin's prime spots with relaxing views & right next door to the park.
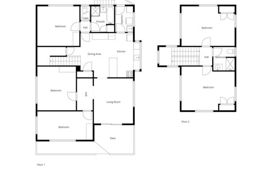
This spacious two-level flat offers five bedrooms and two bathrooms, with three bedrooms on the main level and two extra-large bedrooms upstairs. Enjoy generous living areas, a rear deck with views over Logan Park, and off-street parking for two cars.
Perfectly positioned between the University Oval, Logan Park, and the Alexander McMillan Hockey Centre, it's just minutes from Otago campus, town, and local education hubs.
Currently rented at $950.00 per week with an increase to $975.00 per week, on a fixed-term lease from 01/01/2026 to 31/12/2026, this property represents a strong long-term investment.
Seize the chance to own a reliable investment and highly sought-after student accommodation in one of Dunedin's most coveted locations.
Book a viewing and see why this flat is such a sought-after student property!
Location
Agents
Geraldine Hermens
L.J.Hooker
Licensed Real Estate Salesperson (REAA 2008), Member of the REINZ
Geraldine together with Peter, Amelia - The Hermens Group, is defining a new era of real estate. An unparalleled commitment to achieve excellence sees her as one of the most desired property advisers in Dunedin. Across all touch points in client, process, and team, she is elevating the expectations in service and the commitment to deliver, and in turn, make one of life's great stresses, anything but. Her character, negotiation skills and refined attitude that takes it to the next level - Geraldine has been the recipient of many national and local LJ Hooker awards, most recently:
No1 salesperson-runner up, for the most properties sold in New Zealand 2024-2025
No1 Auction marketer LJ Hooker Dunedin and New Zealand since 2014.
Forever one step ahead, Geraldine is uncompromising in her dedication to continually be better than yesterday. For the client, for the future, for her team, this vision is mirrored in The Hermens Group & LJ Hooker Dunedin - a collective of like-minded operators in drive and delivery. Shaping real estate expectations while creating a legacy of ambition, dedication and perfection.
30 years in the real estate industry and still going strong, Geraldine is an anchor of calm and clarity with an attitude that matches challenges head-on.
Awards:
No 1 salesperson LJ Hooker NZ 2023 - 2024
No1 salesperson LJ Hooker Dunedin 2024 - 2025
No1 salesperson LJ Hooker Dunedin 2022 - 2023
No1 salesperson-runner up, for the most properties sold, LJ Hooker NZ 2020-2021
No1 Auction marketer LJ Hooker Dunedin and New Zealand since 2014.
Member of the Elite 500 Club (2014 - 2022)
Platinum Life Member of LJ Hookers Captains Club - 11 consecutive years
Platinum Life Member of the Multi-Million Dollar Chapter - 6 consecutive years.
Ranked in the Top 2% of Elite Salespeople for LJ Hooker in New Zealand.
"Coming together is a beginning. Keeping together is progress. Working together is success." (Henry Ford)
read more