Sign up

Listed 21 days ago

ID#600197

681 Beechey Street,

Pirongia

Cambridge / Te Awamutu
By Negotiation
7
3
4
610
(6,565.98 sq.ft.)
1.19 Ha
(2.93 Acres)

Open Home

Sunday(7th Dec)
1pm - 1.30pm
Show More
proudly marketed by
Noldy Rust Kezia Wickman Barlow
Ray White Rosetown Realty Ltd MREINZ Ray White - Te Awamutu
Noldy
0272553047
Kezia Wickman
0212990755
Message us about this property

Two Dwellings, Pool, Views & Grazing

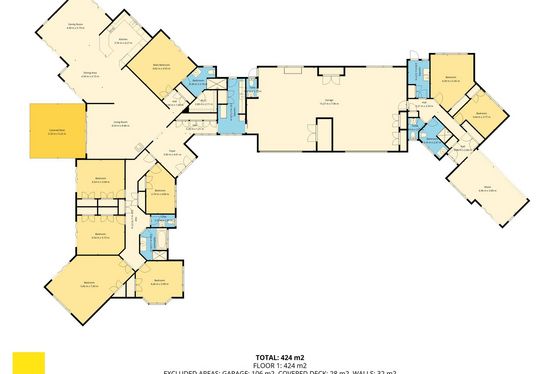
Impressive from the very first moment, this exceptional lifestyle property captures the essence of luxury country living, perfectly positioned to embrace sweeping mountain views and breathtaking sunsets. With approximately 2.8ha (freehold and council lease combined) of grazable land and a residence boasting an expansive 610sqm (approx.) floor area, this is a once in a lifetime opportunity to secure a home that delivers space, versatility, and sophistication in equal measure. Tailor-made for extended, blended, or growing families, the main residence is complemented by an adjoining two bedroom, self contained unit - ideal for family members seeking independence, rental income or a lucrative option for Airbnb.

Crafted from kiln-baked Hinuera stone and cedar, the home blends timeless design with modern comfort and meticulous attention to detail. Its light filled, open plan living areas flow effortlessly onto generous kwila decking where you can relax and watch the kids enjoy the swimming pool, all while soaking up the iconic mountain backdrop. The home has been thoughtfully designed for effortless entertaining and everyday comfort, complete with multiple living zones, quality finishes, and generous four car garaging for those who appreciate space and practicality.

The property's freehold portion of land spans 1.18ha (approx.), complemented by an additional 6.5ha (approx.) of council lease land, which includes picturesque gully areas and several fenced grazable paddocks. Ideal for cattle, sheep, or horses, the land is supported by pressured town water, troughs, a barn, and stockyards with a loading race, ensuring easy management for hobby or lifestyle farming. Beautifully landscaped gardens with fruit trees, cherry blossoms, raised veggie boxes, a chicken run, and ample storage sheds complete the picture. Perfectly positioned within walking distance to Pirongia Village's vibrant cafe, four square, excellent primary school, golf course, and scenic walking and mountain bike trails - this property also offers an easy 10 minute drive to Te Awamutu and under 30 minutes to Hamilton, delivering the ultimate balance of lifestyle and convenience.

Viewing by appointment or advertised open home.

https://rwteawamutu.co.nz/TEA31312

Keywords

Features

  • More than 2 car garaging

Ask a question about this property

Please leave this field blank:
YOUR NAME
YOUR EMAIL
YOUR MESSAGE

Location

Points of Interest
    Loading...

Agents

Noldy Rust

Ray White Rosetown Realty Ltd MREINZ Ray White - Te Awamutu

Licensed Real Estate Salesperson (REAA 2008), Member of the REINZ

Kezia Wickman Barlow

Ray White Te Awamutu

Licensed Real Estate Salesperson (REAA 2008), Member of the REINZ

Kezia grew up in Taupaki, a small rural town in Northwest Auckland but has since relocated to the Waikato and now resides in the rural town of Te Awamutu. Buying her first property at the age of 20, Kezia has bought and sold many since which has fueled her passion for real estate. This has given her a sensitivity towards her clients’ journey, which comes from first-hand perspective gained from personal experience.

With five years industry experience, progressing from administration to licensed PA to independant salesperson, Kezia is a great all-rounder and provides top service in all areas. She stands for integrity, energy, hard work and creativeness in every detail of your real estate transaction.

An explorer by nature, you’ll find Kezia hiking around the Waikato, mountain biking the many river trails or getting stuck into some DIY in her free time. She has a love for animals with a cat and two crazy labradors. Kezia genuinely cares about the people she represents, she is highly motivated and dedicated to her clients. She will take the stress of selling and buying out of your hands, making the process a smooth and enjoyable one.

Surrounded by an experienced, successful team at Ray White Te Awamutu, they recognise and value the trust clients place in them and strive every day to exceed their expectations. Kezia offers a firm knowledge of the market and local properties, clear and honest communication and strong negotiating skills. She provides honest advice and a modern approach to Real Estate.

read more

This property was photographed by

Troy Constable

Media Specialist

Waikato

ID#600197

681 Beechey Street,

Pirongia

Cambridge / Te Awamutu
By Negotiation

Open Home

Sunday(7th Dec)
1pm - 1.30pm
Show More
proudly marketed by
Noldy Rust Kezia Wickman Barlow
Ray White Rosetown Realty Ltd MREINZ Ray White - Te Awamutu
Noldy
0272553047
Kezia Wickman
0212990755
Message us about this property

Leave a message for Troy Constable

Please leave this field blank:
I Would like to
NAME
EMAIL
YOUR AGENT'S NAME
PHONE
MESSAGE
SALE ORDER