Sign up

Listed about 2 months ago

ID#601391

35 D'Archiac Drive,

Lake Tekapo

Fairlie & Districts
Auction
6
5
1,308
(14,079.18 sq.ft.)
proudly marketed by
Wayne Frewen
Bayleys Whalan & Partners Ltd - South/Mid Canterbury
Wayne
021 141 1723
Message Me

Ultimate home and income retreat
Deadline Sale (unless sold prior)
2pm, Fri 23 Jan 2026

Tactfully understated on external appearance and exquisitely bold on internal features sits the epitome of a home and income property in Lake Tekapo.

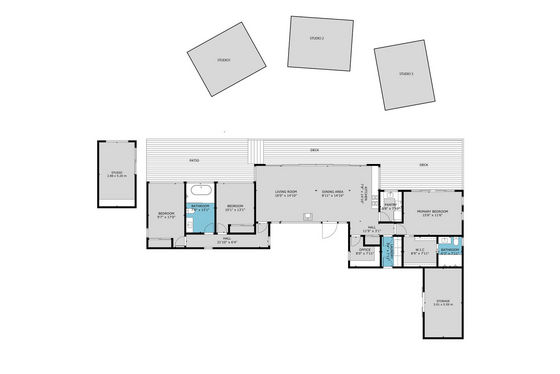
Comprising two distinctive components; a state-of-the art architectural home along with three holiday accommodation studio units returning strong commercial lease income to the owner.

Located on a commanding corner site, elevated to capture lake and alpine views but positioned for privacy, this ADQ Architecture designed home has been crafted for the best of alpine living with no stone left unturned. Luxurious detail sets this home apart; it is designed for entertaining and relaxing alike. This is your ideal escape from the farm or office, and your base for the adventures that the renowned Mackenzie District offers. If retirement beckons, this is your go-to choice with the benefit of passive income attached.

This three-bedroom and two-bathroom home has been crafted to the highest standards with deluxe features including, butler's kitchen with view, office, primary bedroom with walk in robe and en-suite, zoned air-conditioning, underfloor heating, Belling Deluxe Cooker, Woodsman Serene wood burner, argon gas filled thermal glazing, timber flooring, and insulated to the highest standards. The detached media room/bar, spacious deck and patio, and spa pool complement this stunning home, holiday home or luxury holiday accommodation rental.

Also included are the three holiday accommodation studio units, leased, which are returning a substantial annual rent and a lease which provides the new owner the ability to terminate early if desired to enable you to self-manage them or be available for friends and family if so desired. Full details are available on request to qualified buyers.

This is an opportunity not to be missed; discerning buyers are invited to enquire and book your viewing time. Please contact Wayne for more information.

Keywords

Features

  • Ensuite
  • Walk in Wardrobe
  • Spa
  • Office / Study
  • 2 Living areas
  • Air Conditioning
  • Central Heating
  • Off-street parking

Location

  • Mountain Views
  • Lake Views
  • Rural

Ask a question about this property

Please leave this field blank:
YOUR NAME
YOUR EMAIL
YOUR MESSAGE

Location

Points of Interest
    Loading...

Agent

Wayne Frewen

Bayleys Whalan & Partners Ltd - South/Mid Canterbury

Licensed Real Estate Salesperson (REAA 2008), Licensed Real Estate Agent (REA 2008), Member of the REINZ

This property was photographed by

David Young

Media Specialist

Canterbury

ID#601391

35 D'Archiac Drive,

Lake Tekapo

Fairlie & Districts
Auction
proudly marketed by
Wayne Frewen
Bayleys Whalan & Partners Ltd - South/Mid Canterbury
Wayne
021 141 1723
Message Me

Leave a message for David Young

Please leave this field blank:
I Would like to
NAME
EMAIL
YOUR AGENT'S NAME
PHONE
MESSAGE
SALE ORDER