- Find a Property
- Residential
- Commercial
- Farm/Ag
- Rentals
15 Ruby Cove,
Omaha
Rodney District
A Genuine Kiwi Getaway on the Beachfront
Calling all surfers, swimmers, sun seekers and beach walkers - this is pure beachfront living with direct access to sand, surf and the vast blue of the Pacific.
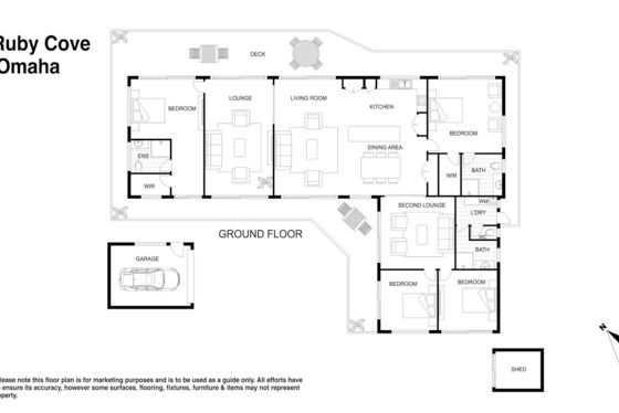
Unpretentious, relaxed and designed for family holidays, this well-presented Lockwood offers easy-care living just 30 seconds from Omaha's white sands.
Single level and cleverly arranged with two separate accommodation wings, it's ideal for two families, multi-generational living or hosting a crowd.
The open-plan kitchen is the natural hub, bringing everyone together.
Exceptionally private and cocooned by an established dune, the home is wrapped in the sound of the sea - a constant reminder of just how close you are to the water.
Inside, the layout is all about minimising housework and maximising beach time, with separate living spaces for TV, board games, quiet time or escaping the midday heat.
Spacious, practical and effortless: turn up, unpack and enjoy.
Sleeps up to ten people, with three living areas and three bathrooms.
You won't get vast views here - instead, you'll enjoy faster access to the water than almost any other beachfront, plus the freedom to launch a kontiki at first light for snapper before the crowds arrive.
Affordable beachfront living in a versatile, easy-care bach with all the mod cons - the kind of place generations will remember.
Floor area: 220m² approx. (Sourced from Auckland Council Rates & Valuation records).
Location
Agent
Di Balich
Precision Real Estate Limited MREINZ
Licensed Real Estate Salesperson (REAA 2008), AREINZ, Member of the REINZ
"Fresh, Fearless and Focused"
Having come from a background of selling Commercial Real Estate for almost 30 years I made the move and transition into Omaha and Matakana Coastal Residential looking for the quality of a better, safer, healthier, lifestyle away from the complicated craziness of the city.
From my extensive experience in successfully transacting millions of dollars of real estate, I see changes in the delivery of marketing property, and the confusion and complexity of information for both buyers and sellers.
De-constructing information is key to finding the right person as agent for you, identifying the right buyer for you, and getting the best results for both the buyer and seller with an agent who has experienced many property cycles.
"Visionary Real Estate"
I am widely recognised as the local leading Omaha and Matakana Coastal specialist, and my results speak for themselves.
Like an apple no property is ever the same. Same with agents. If you are looking for marketing to stand out from the crowd, a trusted, straight talking, to the point, strong and skilled negotiator and someone genuinely working with and for you, calling me maybe one of the best property decisions you will ever make.
Di Balich,
For an obligation-free appraisal Email Di (di@precision.net.nz)
Or phone +64 21 917 080
Keep up to date with the Omaha property market read and subscribe to Di’s monthly newsletter here
read morePhotographs supplied