- Find a Property
- Residential
- Commercial
- Farm/Ag
- Rentals
15A Roys Road,
Weymouth
Manukau
Costal Living Made Easy
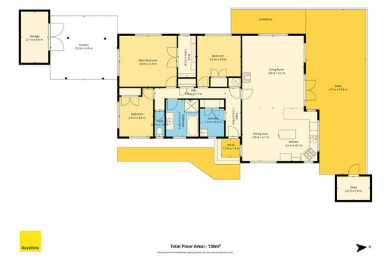
Built in solid brick and tile, this immaculate three-bedroom home is offered by house-proud owners and presents beautifully with fresh paint and new carpet throughout.
Approximately 130m² in dwelling size, the huge open-plan kitchen, dining and lounge area creates a wonderful sense of space and light, making it ideal for family living and entertaining. The expansive living zone flows seamlessly to a private, fully fenced backyard and patio, perfect for relaxing, children, or pets.
The stylish kitchen features an island benchtop and ample storage, while the practical floor plan includes a separate toilet, full bathroom, and a dedicated laundry with additional storage and three linen cupboards for the household.
All three bedrooms are genuine doubles with wardrobes, with the oversized master bedroom enjoying the bonus of a walk-in wardrobe.
Completing the package is a carport with additional off-street parking, adding everyday convenience.
Healthy Homes compliant, Insulated with Alarm and positioned nearby the seashore and Keith park, this low-maintenance home offers relaxed coastal living and easy leisure walks right on your doorstep. Don't delay - owners are moving to Australia. Make your offer!
An excellent first home or a solid investment opportunity.
LIM, Property Booklet, Title, Healthy Homes Assessment on hand.
Open Homes Saturday/Sunday 11.15am - 12.00pm / or by private appointment
Set Date of Sale (unless sold prior) 17/02/2026 @ 3.00pm
Disclaimer - This property is being sold by a set date of sale and therefore a price guide can not be provided. The website may have filtered the property into a price bracket for website functionality purposes. All prospective purchasers shall complete their own due diligence, seek legal and expert advice, and satisfy themselves with respect to information supplied during the marketing of this property, including but not limited to: the floor and land sizes, boundary lines, underground services, along with any scheme plans or consents.
