Sign up

Listed about 20 hours ago

ID#602894

81 Orete Point Road,

Waihau Bay

Opotiki District
Tender
proudly marketed by
Brylie White-Parsons
BOP Private Sales
Brylie
0221854651
Message Me

Life doesn’t get much better than this. Waterfront homes in this tightly held pocket of Waihau Bay

81 Orete Point Road,

Life doesn't get much better than this. Waterfront homes in this tightly held pocket of Waihau Bay are rarely offered to the market, and once you arrive, you'll understand why. With uninterrupted views stretching across the bay, the outlook is nothing short of magic.

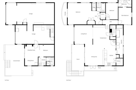
Designed for easy coastal living, this spacious home is spread over two levels. Upstairs, the light-filled open-plan living area is where everyone naturally gathers. Sliding doors open to the front balcony, creating the perfect spot for slow sunrise mornings with coffee, long summer lunches, or simply watching the boats drift by as the sunset reflects over the water.

Downstairs offers a fully self-contained space ideal for extended family, friends, or teenagers wanting their own retreat. Complete with a bedroom, kitchenette, bathroom, and open-plan living area, it provides comfort and privacy while still feeling connected to the main home.

There's generous garaging with a workshop and internal access, perfect for storing the boat, fishing gear, and all the essentials that come with coastal life. Positioned close to the boat ramp and local favourites, yet tucked quietly away from the jetty activity, this property offers the best of both convenience and calm.

Homes like this are all about lifestyle, sea breezes, open space, and room for everyone to unwind. If you've been dreaming of your own slice of Waihau Bay waterfront, this could be the one.

Ask a question about this property

Please leave this field blank:
YOUR NAME
YOUR EMAIL
YOUR MESSAGE

Location

Points of Interest
    Loading...

Agent

Brylie White-Parsons

BOP Private Sales

Licensed Real Estate Salesperson (REAA 2008), Member of the REINZ

This property was photographed by

Brodie Geerlings

Media Specialist

Bay of Plenty

ID#602894

81 Orete Point Road,

Waihau Bay

Opotiki District
Tender
proudly marketed by
Brylie White-Parsons
BOP Private Sales
Brylie
0221854651
Message Me

Leave a message for Brodie Geerlings

Please leave this field blank:
I Would like to
NAME
EMAIL
YOUR AGENT'S NAME
PHONE
MESSAGE
SALE ORDER