- Find a Property
- Residential
- Commercial
- Farm/Ag
- Rentals
5 Hilltop Road,
Parkvale
Tauranga
Welcome to this solid and low-maintenance brick home that offers comfort
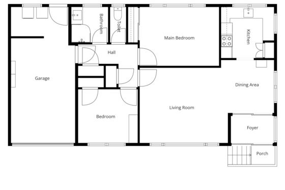
Welcome to this solid and low-maintenance brick home that offers comfort, convenience, and a fantastic location. This two-bedroom, one-bathroom property is an excellent opportunity for first-home buyers, downsizers, or investors seeking an easy-care home.
Inside, the layout is bright, practical, and comfortable. Two well-sized bedrooms provide plenty of natural light, while the functional bathroom with a separate toilet adds everyday convenience. Ready for you to move in and enjoy.
Key Features:
Solid brick construction - durable, low-maintenance living
Two spacious bedrooms with great natural light
Well-appointed bathroom with separate toilet
Single internal access garage for secure parking and convenience
Generous front yard with space for relaxing, gardening, or outdoor enjoyment
Located right by Pemberton Park and Yatton Park, perfect for walks and recreation
Minutes to Fraser Cove Shopping Centre and Greerton Village for shopping, dining, and everyday essentials
Easy access to nearby bus routes for convenient commuting
Outside, the generous front yard provides a pleasant space to relax, garden, or enjoy the sunshine. The single internal access garage also adds both security and practicality to everyday living.
Positioned right by Pemberton Park and Yatton Park, you'll have green space and walking areas almost at your doorstep. You're also just minutes from Fraser Cove Shopping Centre and Greerton Village, with shops, dining, and everyday amenities close by, while nearby bus routes make getting around the city simple.
With its solid brick construction and convenient location, this property offers a smart and appealing opportunity. The vendor has already moved out, leaving the home vacant and ready for you to move in and make it your own.
Deadline | Tuesday 31st March | 1pm | Unless sold prior
Location
Agent
Bee Whitaker
Bower Tauranga
Licensed Real Estate Agent (REA 2008), Member of the REINZ
Bee Whitaker is a remarkable individual with an unwavering commitment to excellence and a deep passion for helping others. Born with a natural flair for negotiation and a keen eye on market trends, along with a genuine desire to assist people. Bee's commitment to going above and beyond for her clients sets her apart, and her professionalism and genuine care for their needs make her a trusted advisor.
Bee has dedicated herself wholeheartedly to raising her four daughters. As a nurturing and loving mother, she embraced the challenges and joys of parenthood, instilling in her children the values of resilience, compassion, and hard work. Bee's ability to balance her professional pursuits and maternal responsibilities showcases her exceptional time management skills and unwavering dedication to her family.
Earlier work as a beauty therapist Bee demonstrated exceptional skills in building and maintaining strong relationships with her clients. Her ability to listen attentively, understanding unique needs, and provide personalised solutions has earned her a stellar reputation for outstanding customer service.
In addition to her professional achievements, Bee is an active member of her community, always seeking opportunities to give back. She exemplifies her commitment to making a positive difference in the lives of others. Bee is also a passionate advocate for health and fitness. She recognizes the importance of maintaining a balanced and active lifestyle and enjoys sharing her knowledge and experiences with others. Whether it's hitting the gym or climbing mauao, Bee finds joy in taking care of her physical and mental well-being.
Bee's journey serves as a testament to the remarkable accomplishments that can be achieved through determination, passion, and a nurturing spirit. As a real estate professional and a loving mother, she continues to inspire those around her with her unwavering drive and integrity.
Bee is excited to help you with your real estate needs so don't hesitate to get in touch.
read more