Sign up

Listed 4 months ago

ID#597961

Dunedin Central

Dunedin
PBN
5
2

Inner-City Living at Its Finest

This home is the perfect example of what happens when craftsmanship, creativity and care come together. A major rebuild completed in 2021 has transformed this heritage building from the ground up. With new Linea cladding, a replacement roof, double-glazed joinery, and new insulation throughout, it now offers the comfort and efficiency of a welcoming inner-city home. The beautifully considered interiors feature a new kitchen, two bathrooms, and statement lighting that brings warmth and personality to every space.

From the street, it makes a real impression. The sun-drenched front deck invites you to pause and take in the city's rhythm. As the light changes, the new, handcrafted stained glass framing the front door glows with shifting colour, beautiful from day to night.

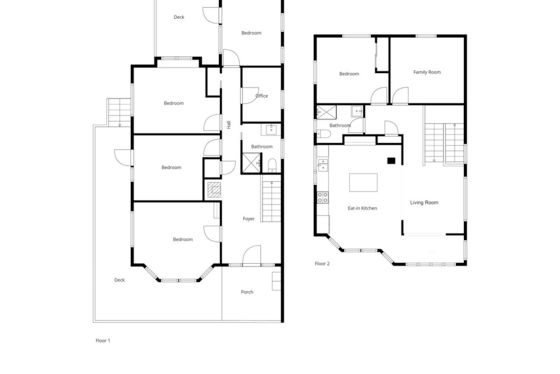
The tiled foyer, warmed by underfloor heating, sets the tone for the attention to detail found throughout. A recessed wood burner keeps the lower level warm, and four generous bedrooms provide ample space for families, particularly for those with teenagers needing room to spread out. Two of these rooms open to decks, and there's also a separate office and a stylish bathroom on this level.

Upstairs, the home opens up to light and views stretching out to the harbour, ocean and city skyline. The kitchen and dining area, with its pressed-tin ceiling and polished timber floor, is a space made for connection. A central island bench offers a generous workspace, complemented by ample cupboard storage. The adjoining living room is enhanced by bi-fold windows that bring the outdoors in. A second living room, the primary bedroom, and bathroom complete this flexible upper level.

The rear section has been thoughtfully landscaped, providing open space for adults, kids and pets to enjoy. For those with an eye for opportunity, there's also the option to purchase 67 Elm Row next door for further development, rental income, or extended grounds.

Loved by its current family for its sense of space, warmth, and unbeatable location - close to schools and the city itself - this home captures the essence of inner-city living without compromise.

Keywords

Property Type

  • Character

Ask a question about this property

Please leave this field blank:
YOUR NAME
YOUR EMAIL
YOUR MESSAGE

Agent

Shane, Julie & Kendra Robinson

The Collective Realty

Licensed Real Estate Salesperson (REAA 2008), Licensed Real Estate Agent (REA 2008), Member of the REINZ

Shane, Julie and Kendra’s philosophy in life is simple, care for others. Whilst they are all competitive, determined, and have a superb business sense, their main focus is to help people and do the very best for them. There have been many occasions in real estate when a contract is looking likely to fall over, however with the depth of their knowledge, and the sheer fight they have for their clients, Shane, Julie and Kendrado absolutely everything possible to get the agreement over the line.

They are driven by their ethics and believe it is imperative to be able to take people through the sales process in a methodical way so they have a clear understanding of everything. Building trust is crucial, and this successful family team are widely known around Dunedin as agents who can be trusted and relied upon for exceptional results. 90% of their business is either by referral or repeat.

Shane, Julie and Kendra are heavily involved in the community with both time and financial support. They are passionate about seeing others have opportunities.

With being a team of four, they have the capabilities and systems in place to provide an exceptional real estate experience through dedicated customer service. Team Robinson listen and make sure they understand their client’s circumstances and requirements. Their goal is to exceed their client’s expectations and provide a seamless stress-free sales process.

Shane, Julie and Kendra take the time to ensure every step of the sales process is carried out professionally and thoroughly. They draw on each other’s individual strengths to provide effective, innovative marketing, and skilful negotiating. They offer a cohesive approach.

Shane, Julie and Kendra believe to give real service you must have sincerity and integrity. They try and treat each client with respect and kindness.

read more

This property was photographed by

Ewen Livingstone

Media Specialist

Otago and Southland

ID#597961

Dunedin Central

Dunedin
PBN
proudly marketed by
Shane, Julie & Kendra Robinson
The Collective Realty
Shane, Julie & Kendra
021 953 676
Message Me

Leave a message for Ewen Livingstone

Please leave this field blank:
I Would like to
NAME
EMAIL
YOUR AGENT'S NAME
PHONE
MESSAGE
SALE ORDER